Projektivni biro Saax
+386 41 24 00 46
Kontakt
Slovenski | English | Hrvatski
About us Realized projects:
Contact
About us
Location
Residental houses
Prefabricated houses
Arhitectural heritage
Public objects
low-carbon construction - EcoCocon
Residental houses
Prefabricated houses
Arhitectural heritage
Public objects
low-carbon construction - EcoCocon
Home > Realized projects: > Arhitectural heritage

Arhitectural heritage

  • Diploma work: Reconstruction of the vila Vipolže, Goriška Brda, 1992, mentor: prof. Peter Fister
  • Castle Dobrovo,Turistist information center, Goriška Brda
  • Hands-free drawing villages: Šempas and Osek
    Analysis and assessment of the situation, base for reconstruction of village
  • Inovation, patent
    Innovation, patent, Kitchen for handicaped, disabled person on wheelchair  ( for more, contact us )
  • has be exhibited at the 13 th Biennial of Industrial Design, BIO 13 in Ljubljana
  • Reward and recognition, Fund to reward innovation in the field of training, living and working with disabilities
  • ...
  • copyrighted work
Castle Vipolze, entrance facade, existing condition, foto arch.Klavdija Ipavec
Castle Vipolze, entrance facade, existing condition, foto arch.Klavdija Ipavec
Castle Vipolze, entrance facade, existing condition, foto arch.Klavdija Ipavec
Castle Vipolze, entrance facade, existing condition, foto arch.Klavdija Ipavec
Castle Vipolze, entrance facade, existing condition, foto arch.Klavdija Ipavec
Castle Vipolze, entrance facade, existing condition, foto arch.Klavdija Ipavec
Castle Vipolze, view from the park, existing condition, foto arch.Klavdija Ipavec
Castle Vipolze, view from the park, existing condition, foto arch.Klavdija Ipavec
Castle Vipolze, entrance facade, existing condition, foto arch.Klavdija Ipavec
Castle Vipolze, entrance facade, existing condition, foto arch.Klavdija Ipavec
Castle Vipolze, entrance facade, existing condition, © arch.Klavdija Ipavec
Castle Vipolze, entrance facade, existing condition, © arch.Klavdija Ipavec
Castle Vipolze, W facade, existing condition, © arch.Klavdija Ipavec
Castle Vipolze, W facade, existing condition, © arch.Klavdija Ipavec
Castle Vipolze, E facade, existing condition, © arch.Klavdija Ipavec
Castle Vipolze, E facade, existing condition, © arch.Klavdija Ipavec
Castle Vipolze, S facade, existing condition, © arch.Klavdija Ipavec
Castle Vipolze, S facade, existing condition, © arch.Klavdija Ipavec
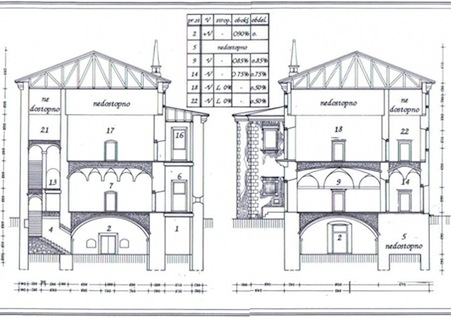
Castle Vipolze, section d-d and e-e, existing condition, © arch.Klavdija Ipavec
Castle Vipolze, section d-d and e-e, existing condition, © arch.Klavdija Ipavec
Castle Vipolze, window, existing condition, foto arch.Klavdija Ipavec
Castle Vipolze, window, existing condition, foto arch.Klavdija Ipavec
Castle Vipolze, balcony, existing condition, foto arch.Klavdija Ipavec
Castle Vipolze, balcony, existing condition, foto arch.Klavdija Ipavec
Castle Vipolze, window detail, existing condition, foto arch.Klavdija Ipavec
Castle Vipolze, window detail, existing condition, foto arch.Klavdija Ipavec
Castle Vipolze, door detail, existing condition, foto arch.Klavdija Ipavec
Castle Vipolze, door detail, existing condition, foto arch.Klavdija Ipavec
Castle Vipolze, window detail, existing condition, foto arch.Klavdija Ipavec
Castle Vipolze, window detail, existing condition, foto arch.Klavdija Ipavec
Castle Vipolze, inwards, existing condition, foto arch.Klavdija Ipavec
Castle Vipolze, inwards, existing condition, foto arch.Klavdija Ipavec
Castle Vipolze, inwards, existing condition, foto arch.Klavdija Ipavec
Castle Vipolze, inwards, existing condition, foto arch.Klavdija Ipavec
Castle Vipolze, rireplace detail, existing condition, foto arch.Klavdija Ipavec
Castle Vipolze, rireplace detail, existing condition, foto arch.Klavdija Ipavec
Castle Vipolze, protective park, existing condition, foto arch.Klavdija Ipavec
Castle Vipolze, protective park, existing condition, foto arch.Klavdija Ipavec
Castle Vipolze, plans, reconstructions, © arch.Klavdija Ipavec
Castle Vipolze, plans, reconstructions, © arch.Klavdija Ipavec
Castle Vipolze, park, reconstruction, © arch.Klavdija Ipavec
Castle Vipolze, park, reconstruction, © arch.Klavdija Ipavec
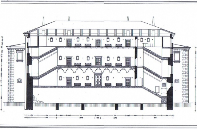
Castle Vipolze, section a-a, reconstruction, © arch.Klavdija Ipavec
Castle Vipolze, section a-a, reconstruction, © arch.Klavdija Ipavec
Castle Vipolze, section b-b and c-c,reconstruction, © arch.Klavdija Ipavec
Castle Vipolze, section b-b and c-c,reconstruction, © arch.Klavdija Ipavec
Castle Vipolze, section d-d, reconstruction, © arch.Klavdija Ipavec
Castle Vipolze, section d-d, reconstruction, © arch.Klavdija Ipavec
Castle Vipolze, section e-e, reconstruction, © arch.Klavdija Ipavec
Castle Vipolze, section e-e, reconstruction, © arch.Klavdija Ipavec
Caste Vipolze, section f-f, reconstruction, © arch.Klavdija Ipavec
Caste Vipolze, section f-f, reconstruction, © arch.Klavdija Ipavec
Caste Dobrovo, TIC (turist-information center), © arch.Klavdija Ipavec
Caste Dobrovo, TIC (turist-information center), © arch.Klavdija Ipavec
Caste Dobrovo, TIC (turist-information center), © arch.Klavdija Ipavec
Caste Dobrovo, TIC (turist-information center), © arch.Klavdija Ipavec
freehand study sketch home village Osek in Primorska, © arch.Klavdija Ipavec
freehand study sketch home village Osek in Primorska, © arch.Klavdija Ipavec
freehand study sketch home village Osek in Primorska, © arch.Klavdija Ipavec
freehand study sketch home village Osek in Primorska, © arch.Klavdija Ipavec
freehand study sketch home village Osek in Primorska, © arch.Klavdija Ipavec
freehand study sketch home village Osek in Primorska, © arch.Klavdija Ipavec
freehand study sketch home village Osek in Primorska, © arch.Klavdija Ipavec
freehand study sketch home village Osek in Primorska, © arch.Klavdija Ipavec
freehand study sketch home village Osek in Primorska, © arch.Klavdija Ipavec
freehand study sketch home village Osek in Primorska, © arch.Klavdija Ipavec
freehand study sketch home village Osek in Primorska, © arch.Klavdija Ipavec
freehand study sketch home village Osek in Primorska, © arch.Klavdija Ipavec
freehand study sketch home village Osek in Primorska, © arch.Klavdija Ipavec
freehand study sketch home village Osek in Primorska, © arch.Klavdija Ipavec
freehand study sketch home village Osek in Primorska, © arch.Klavdija Ipavec
freehand study sketch home village Osek in Primorska, © arch.Klavdija Ipavec
freehand study sketch home village Osek in Primorska, © arch.Klavdija Ipavec
freehand study sketch home village Osek in Primorska, © arch.Klavdija Ipavec
freehand study sketch home village Osek in Primorska, © arch.Klavdija Ipavec
freehand study sketch home village Osek in Primorska, © arch.Klavdija Ipavec
freehand study sketch home village Osek in Primorska, © arch.Klavdija Ipavec
freehand study sketch home village Osek in Primorska, © arch.Klavdija Ipavec
freehand study sketch home village Osek in Primorska, © arch.Klavdija Ipavec
freehand study sketch home village Osek in Primorska, © arch.Klavdija Ipavec
freehand study sketch home village Osek in Primorska, © arch.Klavdija Ipavec
freehand study sketch home village Osek in Primorska, © arch.Klavdija Ipavec
freehand study sketch home village Osek in Primorska, © arch.Klavdija Ipavec
freehand study sketch home village Osek in Primorska, © arch.Klavdija Ipavec
freehand study sketch home village Osek in Primorska, © arch.Klavdija Ipavec
freehand study sketch home village Osek in Primorska, © arch.Klavdija Ipavec
freehand study sketch home village Osek in Primorska, © arch.Klavdija Ipavec
freehand study sketch home village Osek in Primorska, © arch.Klavdija Ipavec
freehand study sketch home village Osek in Primorska, © arch.Klavdija Ipavec
freehand study sketch home village Osek in Primorska, © arch.Klavdija Ipavec
freehand study sketch home village Šempas in Primorska, © arch.Klavdija Ipavec
freehand study sketch home village Šempas in Primorska, © arch.Klavdija Ipavec
freehand study sketch home village Šempas in Primorska, © arch.Klavdija Ipavec
freehand study sketch home village Šempas in Primorska, © arch.Klavdija Ipavec
freehand study sketch home village Šempas in Primorska, © arch.Klavdija Ipavec
freehand study sketch home village Šempas in Primorska, © arch.Klavdija Ipavec
freehand study sketch home village Šempas in Primorska, © arch.Klavdija Ipavec
freehand study sketch home village Šempas in Primorska, © arch.Klavdija Ipavec
freehand study sketch home village Šempas in Primorska, © arch.Klavdija Ipavec
freehand study sketch home village Šempas in Primorska, © arch.Klavdija Ipavec
freehand study sketch home village Šempas in Primorska, © arch.Klavdija Ipavec
freehand study sketch home village Šempas in Primorska, © arch.Klavdija Ipavec
freehand study sketch home village Šempas in Primorska, © arch.Klavdija Ipavec
freehand study sketch home village Šempas in Primorska, © arch.Klavdija Ipavec
freehand study sketch home village Šempas in Primorska, © arch.Klavdija Ipavec
freehand study sketch home village Šempas in Primorska, © arch.Klavdija Ipavec
freehand study sketch home village Šempas in Primorska, © arch.Klavdija Ipavec
freehand study sketch home village Šempas in Primorska, © arch.Klavdija Ipavec
freehand study sketch home village Šempas in Primorska, © arch.Klavdija Ipavec
freehand study sketch home village Šempas in Primorska, © arch.Klavdija Ipavec
freehand study sketch home village Šempas in Primorska, © arch.Klavdija Ipavec
freehand study sketch home village Šempas in Primorska, © arch.Klavdija Ipavec
freehand study sketch home village Šempas in Primorska, © arch.Klavdija Ipavec
freehand study sketch home village Šempas in Primorska, © arch.Klavdija Ipavec
freehand study sketch home village Šempas in Primorska, © arch.Klavdija Ipavec
freehand study sketch home village Šempas in Primorska, © arch.Klavdija Ipavec
freehand study sketch home village Šempas in Primorska, © arch.Klavdija Ipavec
freehand study sketch home village Šempas in Primorska, © arch.Klavdija Ipavec
freehand study sketch home village Šempas in Primorska, © arch.Klavdija Ipavec
freehand study sketch home village Šempas in Primorska, © arch.Klavdija Ipavec
freehand study sketch home village Šempas in Primorska, © arch.Klavdija Ipavec
freehand study sketch home village Šempas in Primorska, © arch.Klavdija Ipavec
freehand study sketch home village Šempas in Primorska, © arch.Klavdija Ipavec
freehand study sketch home village Šempas in Primorska, © arch.Klavdija Ipavec
freehand study sketch home village Šempas in Primorska, © arch.Klavdija Ipavec
freehand study sketch home village Šempas in Primorska, © arch.Klavdija Ipavec
freehand study sketch home village Šempas in Primorska, © arch.Klavdija Ipavec
freehand study sketch home village Šempas in Primorska, © arch.Klavdija Ipavec
freehand study sketch home village Šempas in Primorska, © arch.Klavdija Ipavec
freehand study sketch home village Šempas in Primorska, © arch.Klavdija Ipavec
freehand study sketch home village Šempas in Primorska, © arch.Klavdija Ipavec
freehand study sketch home village Šempas in Primorska, © arch.Klavdija Ipavec
freehand study sketch home village Šempas in Primorska, © arch.Klavdija Ipavec
freehand study sketch home village Šempas in Primorska, © arch.Klavdija Ipavec
© SAAX d.o.o. Nova Gorica, All rights reserved.
Pogoji poslovanja
Web page  Izdelava spletne strani